Kuća u Kuriji sa tri stana u blizini Prigradice

Kuća u Kuriji sa tri stana u blizini Prigradice

Prodaje se kuća u Kuriji u blizini Prigradice, udaljena 70-ak metara od mora ukupne stambene površine 302,24 m².

Iz kuće se pruža predivan pogled na otvoreno more i otok Hvar te okolnu očuvanu prirodu i vegetaciju.

Kuća ima put do mora u vlasništvu površine 78 m2. Objekt je kompletno završen. U kupaonicama se nalazi podno grijanje, sve je klimatizirano, okućnica uređena, svaki apartman ima odvojena brojila struje i vode, u sobama je masivni parket, sve druge obloge su od prirodnog kamena uključujući dijelove dvorišta, vrta i terasa, a zidovi su uređeni ručno klesanim autohtonim kamenom, fasada je Caparol / stiopor 10 cm CAPATECT Dalmatiner ,a kuća je energetski razred "A" te ima taj certifikat.

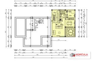
Kuća se sastoji od 3 stana i moguća je pojedinačna kupovina svakog u dogovoru s vlasnikom jer postoji uređeni etažni elaborat i zasebna brojila.

Stan “A” , koji se proteže kroz prizemlje i kat, prizemlje se sastoji od: natkrivenog ulaza, hodnika, kuhinje, blagovaone i dnevnog boravka, stepeništa, natkrivene terase, a kat se sastoji od hodnika, tri spavaće sobe i kupaone, ukupne korisne površine 94,23m2,označeno u nacrtima žutom bojom te sporednih dijelova ukupne korisne površine 15,35m2.

Apartman 1 cijena 390.000 EUR

Stan “B” u etaži prizemlja, koji se sastoji od: natkrivenog ulaza, hodnika, dvije spavaće sobe, kupaone, kuhinje, blagovaone, dnevnog boravka i natkrivene terase, ukupne korisne površine 76,13m2,označeno u nacrtima crvenom bojom te sporednih dijelova ukupne korisne površine 21,17m2.

Apartman 2 cijena 340.000 EUR

Stan “C” u etaži kata, koji se sastoji od: natkrivenog ulaza, hodnika, kuhinje, blagovaone, dnevnog boravka, dvije spavaće sobe, kupaone i natkrivene terase, ukupne korisne površine 76,39m2,označeno u nacrtima plavom bojom, te sporednih dijelova ukupne korisne površine 10,10m2.

Apartman 3 cijena 350.000 EUR

Agencija Korčula Projekti nudi mogućnost vođenja i koordinacije projekta budućim vlasnicima i investitorima te pronalazak najboljih i najkvalitetnijih opcija pri gradnji i uređenju.

Cijena: 340,000.00 €

Fotogalerija